Passa ai contenuti principali

Casa F&A | 140 MQ |

Progetto di interni.

Progetto di ristrutturazione di un intero appartamento a Palermo.

Al momento dell'acquisto l'appartamento non era abitato da anni e presentava un’articolazione degli spazi tradizionale.

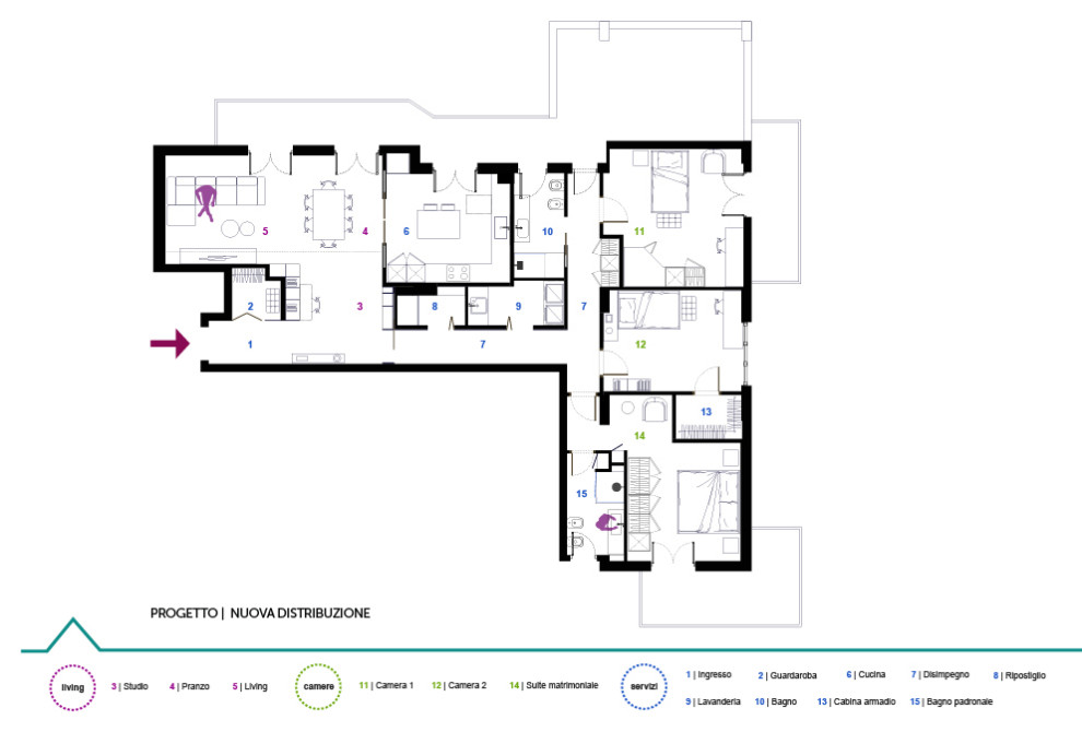
Per cui si è scelto di demolire tutto e ripartire da zero con una nuova distribuzione degli spazi che tenesse in considerazione tutte le esigenze dei clienti: prima fra tutte un'area living spaziosa e accogliente, in stretta relazione con la cucina. Due grandi porte scorrevoli però all’occorrenza rendono indipendenti i due ambienti, dividendo la cucina dalla sala da pranzo e dal living.

Alcuni arredi sono stati disegnati ad hoc e realizzati su misura.

1_ La libreria angolare avvolge il vano guardaroba e nasconde un vano scrittoio a ribalta.

2_ La libreria frontale all’ingresso con pannello scorrevole a tutta altezza introduce alla zona notte separando così le due anime della casa.

Importanti anche gli spazi di servizio - lavanderia e ripostiglio - ricavati lungo il disimpegno che conduce alla zona notte e valorizzati da una boiserie che ne occulta i due ingressi.

La parte finale del corridoio ospita la suite matrimoniale: qui troviamo l’ingresso al bagno padronale e un piccolo angolo lettura-relax che introduce nella zona letto vera e propria.